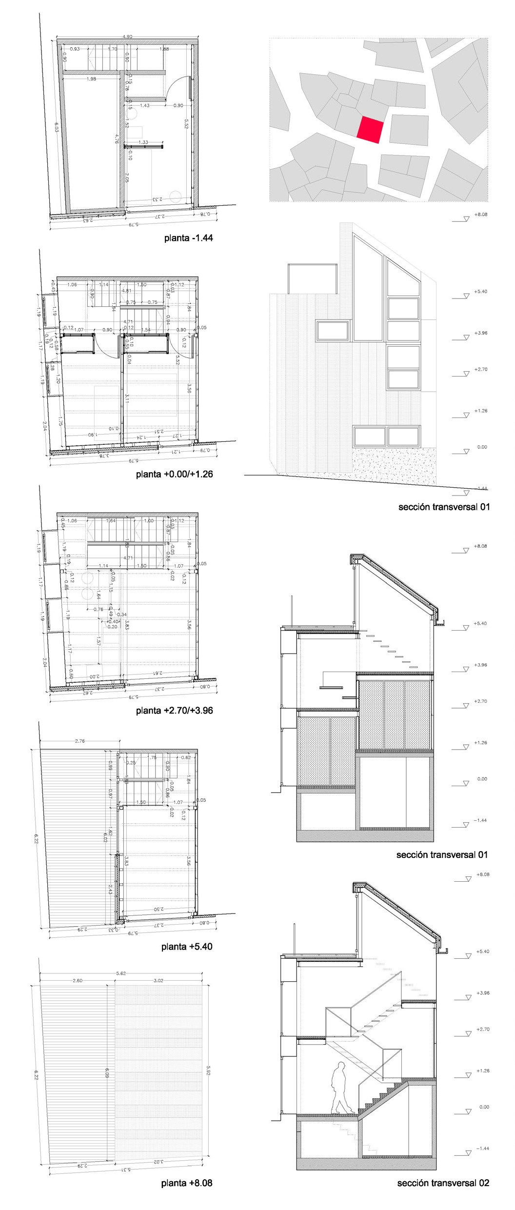
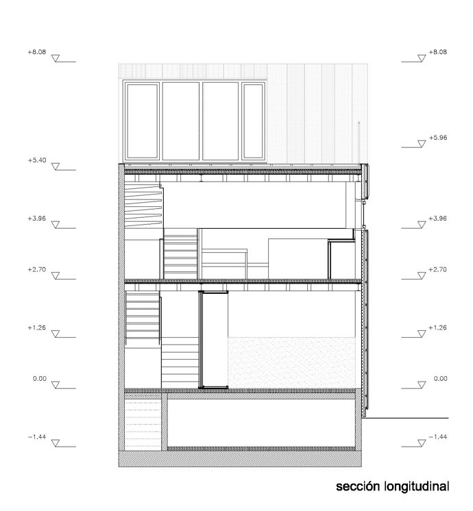
casa en palmeira