





























Premio Juana de Vega de intervenciones en el Paisaje 2014
fotografia HectorSantos Diez
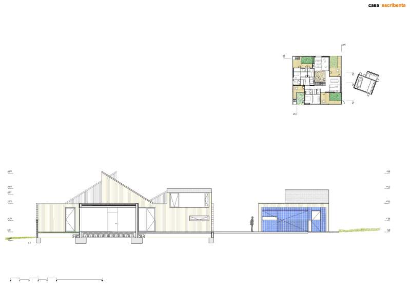
Un emplazamiento, un lugar sin claras referencias, una pradera en suave pendiente que baja hasta el rio, un núcleo rural relativamente lejano, ninguna orientación con vistas privilegiadas.
La vivienda encuentra su acomodo y su escala a través de 5 patios que serán esos lugares amables entre lo doméstico y la pradera entre lo humano y lo natural.
el tiempo en su dimensión ancestral del paso de las estaciones de las variaciones climáticas, el cielo gris, azul limpio, a veces amenazador penetra en la vivienda a través de grandes lucernarios convirtiendolo en la auténtica referencia del lugar.
Un muro perimetral de bloque de hormigon arropa el conjunto como un pequeño asentamiento, de cierto caracter defensivo, introvertido y al mismo tiempo los grandes lucernarios se lanzan al paisaje lejano a las vistas inexistentes a la conquista de la boveda celeste.
Los materiales que construyen la casa son los mismos que han construido la arquitecturea popular del rural, los galpones, las naves, los cerramientos de las fincas. Fungibles, de texturas profundas, cambiantes con el tiempo, con la edad esperando el musgo que los colonice , el liquen, el sol que los abrase o la lluvia que los ennegrezca.
A site, a place without clear references, a gently sloping meadow leading down to the river, a relatively distant rural town, without orientation to spectacular views.
The property finds accommodation and scale across 5 yards being one of those gently places between the domestic and the meadow, between human and nature.
Time in its ancestral dimension of changing seasons and climatic variations, the grey sky, clean blue, sometimes menacing, it enters the house through large skylights to make it an authentic reference site.
A perimeter wall of concrete block clothes together as a small settlement, with a certain defensive character, introverted character while the large skylights move togards the distant landscape to take to the nonexistent to conquer the celestial vault view.
The materials used to build the house are the same that were used for the rural popular architecture, its sheds, its storehouses and its farm fences. Consumables, with deep textures, changing over the time, with a certain age waiting for the moss to be colonized, lichen, the burning sun or the darkened rain.