




















Con Jose Luis Martinez Raido
fotografias Héctor Santos Díez
2023
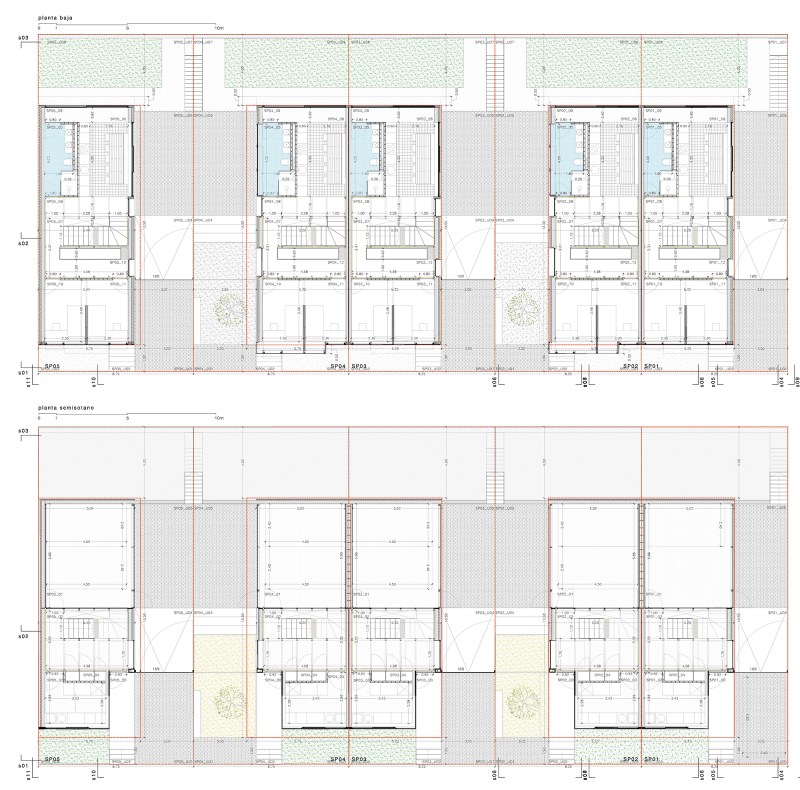
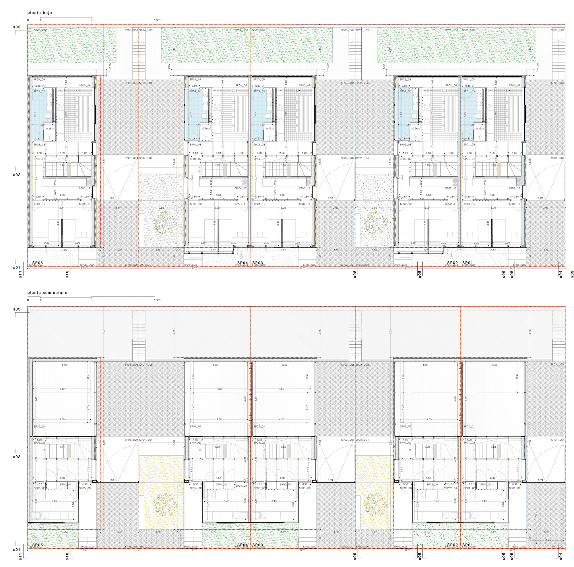
Como decisión de partida se evita resolver el pareado simétricamente, la escalera se desarrolla en la misma posición relativa lo que crea una condición muy diferente en cada vivienda que configura el pareado y facilita así entre ellas un juego de miradas cruzadas; allí donde una vivienda mira la otra se oculta, y donde una se oculta la otra mira haciéndose esto más evidente en las viviendas enfrentadas entre pareados creando este juego un nexo virtual entre ellos… en un continuo juego de muecas y gestos. La escalera se entiende además como un lugar de deambulación que se diferencia constructivamente del resto de la vivienda siendo una estructura ligera de acero que se ramifica en forjados de chapa grecada. Los espacios de estancia están definidos por muros y losas de hormigón que acentúan cierta condición de refugio y reposo. Esta máquina-escalera ligera y vertiginosa recorriendo 4 niveles desde el semisótano hasta el bajo cubierta hace de estos un solo espacio… La piel exterior es una fachada trasventilada de madera de pino-abeto termo tratada a la que se le ha aplicado un lasur negro. El despiece, menudo, evoca lo domestico, lo artesano, lo manual, lo no seriado oponiéndose al destino del “pareado” sugiriendo la complejidad de los espacios y de la sección que visten. La configuración de la escalera y sus espacios facilita las ventilaciones cruzadas en verano. ACS y calefacción de suelo radiante con bomba de calor y aerotermia permiten una optimo balance entre el consumo y emisiones de CO2
As a starting point, the decision is to avoid simetry. The staircase is developed in the same relative position, creating a very different condition in each dwelling that makes it up, thus facilitating a play of crossed glances between them. Where one dwelling faces, the other hides, and where one hides, the other looks. This becomes more evident in the dwellings facing each other, creating a virtual link between them… in a continuous game of grimaces and gestures. The staircase is also understood as a place of wandering that is constructively differentiated from the rest of the dwelling, being a light steel structure that branches out into corrugated sheet metal floors. The living spaces are defined by concrete walls and slabs that accentuate a certain condition of refuge and rest. This light and vertiginous stair-machine, running through four levels from the basement to the lower roof, makes these a single space… The exterior skin is a ventilated façade of heat-treated pine-fir wood to which a black stain has been applied. The detailed layout evokes the domestic, the artisanal, the manual, the non-serial, suggesting the complexity of the spaces and the section they cover. The layout of the staircase and its spaces facilitates cross-ventilation in summer. Heating with a heat pump and aerothermal energy system allow for an optimal balance between consumption and CO2 emissions.