










con Anton Pena Auge, Lorenzo Dominguez y Sinaldaba
Un lugar para el empoderamiento de la ciudadanía, de intensidad urbana y metropolitana, una arquitectura entendida como infraestructura a la espera de ser ocupada y transformada por los vecinos. Arquitectura como respuesta a los anhelos y aspiraciones de una sociedad, con su capacidad transformadora al servicio de modelos donde la sostenibilidad, ecología, economía colaborativa, mercado de cercanía, educación desde la experiencia, huertos urbanos, movilidad… son las noticias de un lugar concreto real que nos resistimos a llamar U-Topía. Arquitectura como condensador social y arte-facto, “Fun Palace” del siglo XXI.
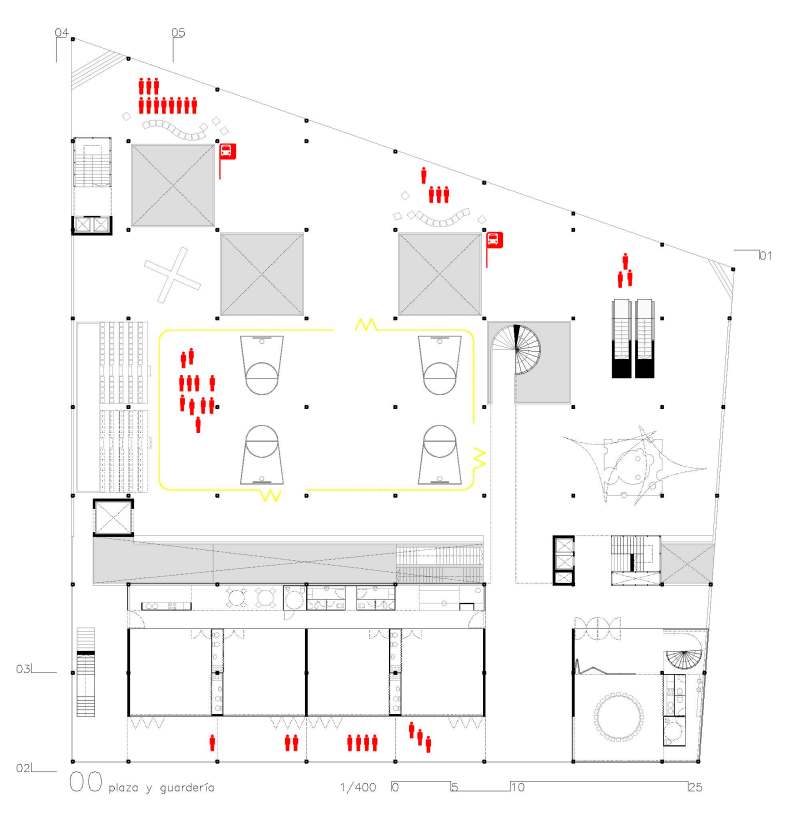
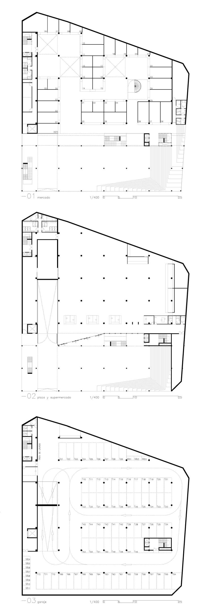
La propuesta conserva la gran fábrica de hormigón del antiguo mercado y parking, racionalizando usos y recorridos. Sobre ella se levanta una nueva infraestructura en la que por un lado Vecinos y Guardería pasan a ocupar una posición privilegiada y por otro se recuperan las plazas públicas hacia las calles Forcarey y Avenida de Hércules entendidas estas como espacios híbridos, a cubierto, a medio camino entre el ágora y el zoco. Lugar para el encuentro, para la representación, para el juego, pero también para el mercado de cercanía, la féria mensual o el mercadillo.
El mercado existente con todos sus puestos y concesiones se desarrolla en su posición original bajo el espacio público reorganizándolo en torno a dos pequeñas plazas bajo los huecos preexistentes para evitar costosas labores de demolición y además dotarlo también de esa condición de ágora accesible y abierta. Guardería y locales para asociaciones adoptan una configuración flexible que será finalmente consensuada o renovada según necesidades. Como gran plusvalía y a modo de cubierta estratégicamente perforada se desarrolla un huerto urbano que se antoja decisivo e imprescindible en la labor de cohesión social y de reconstrucción de los vínculos afectivos y emocionales de la ciudadanía hacia lo público. Locus Amoenus, Hortus Conclusus, recinto, huerto y jardín sobre el drama de lo urbano, lugar para el silencio, donde ceden demandas y exigencias. Además de coronar simbólicamente Monte Alto con un jardín y añadir un espacio verde a la notable densidad del barrio, la dimensión de esta nueva infraestructura entendemos trasciende lo local para convertirse en un nuevo icono metropolitano que ha de desvelar y visualizar en un lugar concreto aquellos procesos naturales económicos y productivos vinculados al reciclaje, a la gestión ecológica y sostenible del agua, energía y residuos más allá de ciertas exigencias normativas.
El huerto, el jardín como primera escuela. Como aquella de Epicuro donde los niños y ciudadanos podrán ahora como entonces aprender a respetar la naturaleza y a sí mismos.